Roosendaal – Voorstraat 72
- Koopprijs
- € 219.000,- k.k.
- Status
- Verkocht
- Bouwjaar
- 1926
- Objecttype
- Woonhuis
- Soort
- Eengezinswoning
- Type
- Halfvrijstaande woning
- Soorten
- Vrijstaand steen
- Perceel oppervlakte
- 147 m2
- Aantal kamers
- 4
- Aantal slaapkamers
- 3
Omschrijving
Op loopafstand van het stadscentrum gelegen, leuke halfvrijstaande woning met achtertuin voorzien van grote berging.
Van deze woning is een unieke woningwebsite beschikbaar. Download de brochure (bij Funda) voor de link naar de website waar u alle gegevens van de woning kunt vinden of informeer bij ons kantoor.
MOGELIJKHEID OVERNAME EXTRA GARAGE!
Bouwjaar: circa 1926.
Perceelsoppervlakte woning: circa 124 m2.
Inhoud woonhuis: circa 229 m3.
Woonoppervlakte: circa 65 m2.
Perceelsoppervlakte garage: circa 23 m2.
Vloeroppervlakte berging: circa 19 m2.
Energielabel: G.
IDEALE STARTERSWONING!
Deze woning is zorgzaam/netjes bewoond en moet alleen nog gemoderniseerd/aangepast worden aan de normen van deze tijd. U kunt deze woning dus nog geheel naar eigen wensen inrichten.
Afwerking:
De woning is niet voorzien van isolatie, er is geen CV installatie aanwezig. De huidige verwarming geschiedt door middel van gaskachels en er is een gehuurde badgeiser aanwezig. Verder is de woning gedeeltelijk voorzien van dubbele beglazing en gedeeltelijk rolluiken.
OP LOOPAFSTAND VAN STADSCENTRUM!
Indeling:
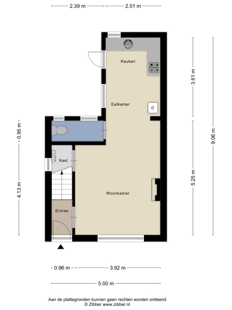
Begane grond:
• Hal.
• Woonkamer (circa 28 m2 inclusief open keuken) met betonvloer, ingebouwde gaskachel, dubbele beglazing en rolluiken.
• Kelderkast met meterkast (twee groepen en geen aardlekschakelaar).
• Open keuken met betonvloer, gaskachel, keukenblok voorzien van oven, 4-pits gaskookplaat en afzuigkap.
• Toilet.
Eerste verdieping (houten vloer):
• Overloop voorzien van paneeldeuren.
• Slaapkamer I (circa 8,5 m2) met rolluik.
• Slaapkamer II (circa 6 m2) met kleine dakkapel en vaste kast.
• Slaapkamer III (circa 7 m2) met rolluik en dubbele beglazing.
• Nette badkamer voorzien van douche, rolluik en dubbele beglazing.
Tweede verdieping:
• Via luik bereikbaar.
• Vliering (bevloerd) met een nokhoogte van circa 1,30 meter.
Perceel:
• Gemeenschappelijke zijgang/poortgang naar de straat.
• Royale achtertuin (circa 15 meter diep en 5,5 meter breed) voorzien van buitenkraantje.
• Grote berging (circa 7 x 2,65 meter) voorzien van elektra en wasmachineaansluiting.
• Mogelijkheid voor overname garagebox, welke is gelegen op afgesloten pleintje recht tegenover de woning.
Aanvaarding in overleg!
Vraagprijs woning: € 219.000,– k.k.
Vraagprijs garage € 17.500,– k.k.
Toelichtingsclausule NEN2580:
De Meetinstructie is gebaseerd op de NEN2580 (maar wijkt hier wel enigszins vanaf). De Meetinstructie is bedoeld om een meer eenduidige manier van meten toe te passen voor het geven van een indicatie van de gebruiksoppervlakte. De Meetinstructie sluit verschillen in meetuitkomsten niet volledig uit, door bijvoorbeeld interpretatieverschillen, afrondingen of beperkingen bij het uitvoeren van de meting.
U kunt de meetinstructie nalezen via de website van de NVM: nvm.nl/wonen/kopen/meetinstructie/ of eventueel op te vragen via ons kantoor.
Plattegronden
