Roosendaal – Susannadonk 10
- Koopprijs
- € 325.000,- k.k.
- Status
- Beschikbaar
- Bouwjaar
- 1971
- Objecttype
- Woonhuis
- Soort
- Eengezinswoning
- Type
- Tussenwoning
- Soorten
- Garagebox
- Perceel oppervlakte
- 143 m2
- Aantal kamers
- 4
- Aantal slaapkamers
- 4
Omschrijving
Op zeer gunstige locatie, in groene omgeving, nabij winkels en scholen gelegen, keurig nette, gemoderniseerde en verduurzaamde woning met zonnige achtertuin op het zuidwesten.
Van deze woning is een unieke woningwebsite beschikbaar. Download de brochure (bij Funda) voor de link naar de website waar u alle gegevens van de woning kunt vinden of informeer bij ons kantoor.
MOGELIJK BIJKOOP NABIJ GELEGEN GARAGEBOX (NUMMER 47D)!
Bouwjaar: circa 1971.
Perceelsoppervlakte: circa 143 m2.
Inhoud woonhuis: circa 427 m3.
Woonoppervlakte: circa 121 m2.
Vloeroppervlakte garage: circa 16 m2.
Inhoud garage: circa 56 m3.
Energielabel: B.
HELE LICHTE, ROYALE WOONKAMER!
Deze woning is voorzien van:
– 8 zonnepanelen (circa 4 jaar oud).
– Gedeeltelijk aluminium kozijnen met HR dubbele beglazing.
– Extra dakisolatie.
– HR CV combiketel (2019).
– De keuken is verplaatst naar de originele berging aan de voorzijde, waardoor er een zeer royale woonkamer gecreëerd is.
GROTE GLAZEN PUI AAN ACHTERZIJDE MET VEEL LICHTINVAL!
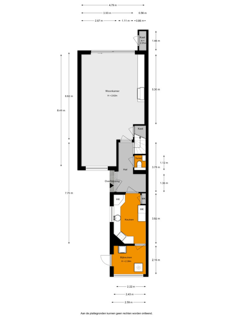
Indeling:
Begane grond:
• Voorzien van vloerverwarming als bijverwarming.
• Royale hal met garderobehoek en twee fraaie, industrieel look deuren.
• Toilet voorzien van wandcloset en fonteintje.
• Dichte keuken (circa 8 m2) op de plaats waar oorspronkelijk de berging zat) aan voorzijde met royaal keukenblok voorzien van veel kastruimte, oven, inductiekookplaat, afzuigkap, koelkast, vaatwasser en airco (kan ook verwarmen).
• Vernieuwde, uitgebreide meterkast.
• Kleine berging aan de voorzijde met wasmachineaansluiting, verwarming, close-in boiler ten behoeve van de keuken en loopdeur naar voortuin.
• Royale woonkamer (circa 37 m2) met eethoek aan de voorzijde, voorzien van airco (kan ook verwarmen), royale zithoek met heel veel lichtinval vanwege mooie hoge ramen aan de tuinzijde, plateau met mogelijkheid voor het plaatsen van de TV, grote schuifpui naar de tuin.
Eerste verdieping:
• Overloop.
• Grote slaapkamer I (circa 20 m2, oorspronkelijk twee slaapkamers) aan achterzijde voorzien van vaste kasten en elektrisch rolluik.
• Slaapkamer II (circa 11,5 m2) aan te voorzijde.
• Moderne badkamer voorzien van wandcloset (Sanibroyeur), vaste wastafelmeubel met spiegelkast, douchecabine voorzien van regendouche en handdouche en mechanische ventilatie.
Tweede verdieping (betonvloer):
• Bereikbaar via vaste trap vanuit de slaapkamer aan de voorzijde.
• Hele mooie slaapkamer III met rolluik en aluminium kozijn.
• Bergruimte met HR CV combiketel (Vaillant, 2019).
Perceel:
• Onderhoudsvriendelijke achtertuin op het zuidwesten, voorzien van buitenkraan.
• Overdekt terras achterin de tuin voorzien van elektrisch zonnescherm.
• Berging.
• Tweede bergkast
Aanvaarding in overleg!
VRAAGPRIJS: € 325.000,– K.K. (voor de woning)
VRAAGPRIJS: € 25.000,– K.K. (voor de garage)
Totale vraagprijs woning inclusief garage: € 350.000,– k.k.
Toelichtingsclausule NEN2580:
De Meetinstructie is gebaseerd op de NEN2580 (maar wijkt hier wel enigszins vanaf). De Meetinstructie is bedoeld om een meer eenduidige manier van meten toe te passen voor het geven van een indicatie van de gebruiksoppervlakte. De Meetinstructie sluit verschillen in meetuitkomsten niet volledig uit, door bijvoorbeeld interpretatieverschillen, afrondingen of beperkingen bij het uitvoeren van de meting.
U kunt de meetinstructie nalezen via de website van de NVM: nvm.nl/wonen/kopen/meetinstructie/ of eventueel op te vragen via ons kantoor.
Plattegronden
